介護付き有料老人ホームのご案内
-
介護付き有料老人ホームのご案内2025.12.25
-
介護付き有料老人ホームのご案内2025.12.25
ご利用料金
敷金1ヵ月
1ヵ月
198,000円
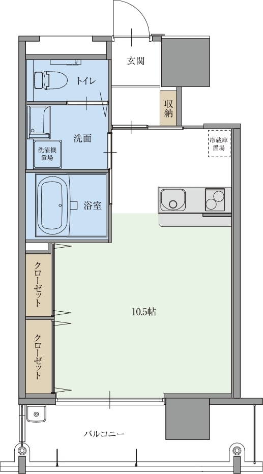
[A-TYPE] 37.73㎡~
215,000円
[D-TYPE] 41.42㎡内訳
[家賃118,000〜135,000円]
+
[共益費20,000円]
+
[食費60,000円]
※3食×30日分ご注文の場合
※この他、光熱費実費と介護保険の割合に合わせた負担分が必要です。
介護保険料・月額
| 1割負担 | 2割負担 | 3割負担 | |
|---|---|---|---|
| 要支援1 | 5,490 | 10,980 | 16,470 |
| 要支援2 | 9,390 | 18,780 | 28,170 |
| 要介護1 | 16,260 | 32,520 | 48,780 |
| 要介護2 | 18,270 | 36,540 | 54,810 |
| 要介護3 | 20,370 | 40,740 | 61,110 |
| 要介護4 | 22,320 | 44,640 | 66,960 |
| 要介護5 | 24,390 | 48,780 | 73,170 |
※その他、介護保険料には事業所の体制状況によって各種加算が算定されます。
※介護保険の改定により、変動がございます。
介護居室間取り・賃料一覧
Aタイプ
4~7F (38.77㎡)
北向き
| 701号室 | 11.8万 |
| 601号室 | 11.8万 |
| 501号室 | 11.8万 |
| 401号室 | 11.8万 |
Bタイプ
4~7F (38.73㎡)
北向き
| 702号室 | 11.8万 |
| 602号室 | 11.8万 |
| 502号室 | 11.8万 |
| 402号室 | 11.8万 |
Cタイプ
4~7F (41.13㎡)
北向き
| 703号室 | 11.8万 |
| 603号室 | 11.8万 |
| 503号室 | 11.8万 |
| 403号室 | 11.8万 |
Dタイプ
4~7F (41.42㎡)
北向き
| 704号室 | 11.8万 |
| 604号室 | 11.8万 |
| 504号室 | 11.8万 |
| 404号室 | 11.8万 |
Eタイプ
4~7F (39.62㎡)
南向き
| 705号室 | 13.5万 |
| 605号室 | 13.5万 |
| 505号室 | 13.5万 |
| 405号室 | 13.5万 |
Fタイプ
4~7F (37.27㎡)
南向き
| 706号室 | 12.8万 |
| 606号室 | 12.8万 |
| 506号室 | 12.8万 |
| 406号室 | 12.8万 |
Gタイプ
4~7F (38.29㎡)
南向き
| 707号室 | 12.8万 |
| 607号室 | 12.8万 |
| 507号室 | 12.8万 |
| 407号室 | 12.8万 |
Hタイプ
4~7F (40.07㎡)
南向き
| 708号室 | 13万 |
| 608号室 | 13万 |
| 508号室 | 13万 |
| 408号室 | 13万 |
お部屋・設備
入居・予約状況
| タイプ | A | B | C | D | E | F | G | H |
|---|---|---|---|---|---|---|---|---|
| 7階 |
701 募集中 |
702 募集中 |
703 商談中 |
704 募集中 |
705 成約済み |
706 商談中 |
707 成約済み |
708 商談中 |
| 6階 |
601 募集中 |
602 募集中 |
603 募集中 |
604 募集中 |
605 商談中 |
606 成約済み |
607 成約済み |
608 募集中 |
| 5階 |
501 商談中 |
502 募集中 |
503 募集中 |
504 募集中 |
505 成約済み |
506 成約済み |
507 募集中 |
508 募集中 |
| 4階 |
401 商談中 |
402 募集中 |
403 募集中 |
404 募集中 |
405 成約済み |
406 商談中 |
407 募集中 |
408 募集中 |
介護付き有料老人ホームに
関するお問い合わせ
入居のご相談やご質問など、お気軽にお問い合わせください。
-
電話でのお問い合わせ
088-855-8658対応時間:9時〜17時(平日)
-
メールでのお問い合わせ
お問い合わせフォーム対応時間:24時間受付中